Mehr anzeigen zum Thema Beschreibung
Beschreibung
Wir freuen uns, Ihnen dieses großzügige Einfamilienhaus in Top-Lage auf der Mülheimer Heimaterde anbieten zu können!
Willkommen in Ihrem zukünftigen Traumhaus! Diese gepflegte Doppelhaushälfte, erbaut im Jahr 1991, verfügt über großzügige 215 m² Wohnfläche, die sich auf drei Ebenen verteilen. Hier ist Platz für die ganze Familie!
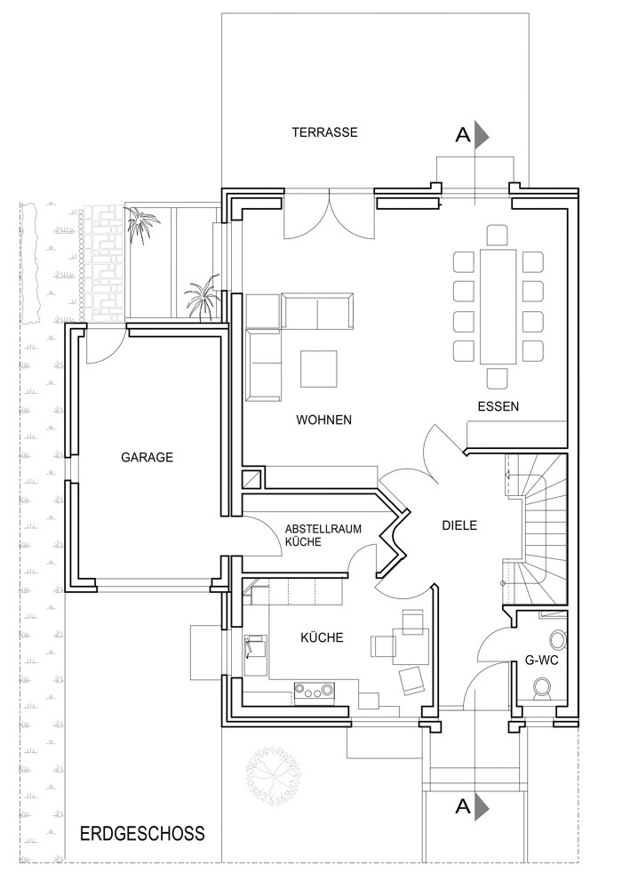
Im Erdgeschoss erwartet Sie zunächst ein geräumiges Entrée mit angrenzendem Gäste-WC. Von hier aus gelangen Sie in den Wohn-/ Essbereich, der über großzügige 43 m² Wohnfläche verfügt und Zugang zum schön angelegten Garten inklusive kleiner Teichanlage bietet. Bodentiefe Fensterelemente sorgen für die entsprechend gute Belichtung. Außerdem befindet sich im Erdgeschoss die circa 12 m² große Küche, die zusätzlich über einen begehbaren Vorratsraum verfügt. Praktischerweise gibt es von hier aus einen direkten Zugang zur Garage.
Über eine elegante Holztreppe gelangen Sie in das Dachgeschoss des Hauses. Hier befinden sich drei flexibel nutzbare Zimmer und ein geräumiges, hell gefliestes Tageslicht-Bad mit Badewanne und Dusche. Vom größten Raum dieser Ebene führt eine Treppe in den Spitzboden des Hauses, der als zusätzlicher Abstellraum genutzt werden kann.
Im Untergeschoss bzw. Souterrain des Hauses befindet sich unter anderem ein geräumiges Schlafzimmer, das über einen kleinen Rosengarten gut belichtet ist. An das Schlafzimmer schließt sich ein Bad en Suite an, das über eine exklusive Ausstattung inklusive Dusche, Whirlpool und Saunakabine verfügt. Auf dieser Ebene befindet sich außerdem noch ein belichtetes Arbeitszimmer, ein Hauswirtschaftsbereich und zwei Abstellräume .
Aktuelle monatliche Nebenkosten: Heizung 205 € / Wasser 42 € / Strom 131 €
jährl. Grundsteuer: 933 €
jährl. Abwasser: 286,70 €
jährl. Straßenreinigung: 178,36 €
jährl. Müllabfuhr: 500,87 €
Unser Fazit: ein grundsolides, vom Architekten geplantes Einfamilienhaus mit viel Platz in einer sehr begehrten Wohnlage!
Willkommen in Ihrem zukünftigen Traumhaus! Diese gepflegte Doppelhaushälfte, erbaut im Jahr 1991, verfügt über großzügige 215 m² Wohnfläche, die sich auf drei Ebenen verteilen. Hier ist Platz für die ganze Familie!
Im Erdgeschoss erwartet Sie zunächst ein geräumiges Entrée mit angrenzendem Gäste-WC. Von hier aus gelangen Sie in den Wohn-/ Essbereich, der über großzügige 43 m² Wohnfläche verfügt und Zugang zum schön angelegten Garten inklusive kleiner Teichanlage bietet. Bodentiefe Fensterelemente sorgen für die entsprechend gute Belichtung. Außerdem befindet sich im Erdgeschoss die circa 12 m² große Küche, die zusätzlich über einen begehbaren Vorratsraum verfügt. Praktischerweise gibt es von hier aus einen direkten Zugang zur Garage.
Über eine elegante Holztreppe gelangen Sie in das Dachgeschoss des Hauses. Hier befinden sich drei flexibel nutzbare Zimmer und ein geräumiges, hell gefliestes Tageslicht-Bad mit Badewanne und Dusche. Vom größten Raum dieser Ebene führt eine Treppe in den Spitzboden des Hauses, der als zusätzlicher Abstellraum genutzt werden kann.
Im Untergeschoss bzw. Souterrain des Hauses befindet sich unter anderem ein geräumiges Schlafzimmer, das über einen kleinen Rosengarten gut belichtet ist. An das Schlafzimmer schließt sich ein Bad en Suite an, das über eine exklusive Ausstattung inklusive Dusche, Whirlpool und Saunakabine verfügt. Auf dieser Ebene befindet sich außerdem noch ein belichtetes Arbeitszimmer, ein Hauswirtschaftsbereich und zwei Abstellräume .
Aktuelle monatliche Nebenkosten: Heizung 205 € / Wasser 42 € / Strom 131 €
jährl. Grundsteuer: 933 €
jährl. Abwasser: 286,70 €
jährl. Straßenreinigung: 178,36 €
jährl. Müllabfuhr: 500,87 €
Unser Fazit: ein grundsolides, vom Architekten geplantes Einfamilienhaus mit viel Platz in einer sehr begehrten Wohnlage!
Mehr anzeigen zum Thema Ausstattung Beschreibung
Ausstattung Beschreibung
Einige Ausstattungsdetails:
- Massivbauweise mit wärmegedämmter Klinkerfassade
- teils bodentiefe Fenster mit 2-fach-Isolierverglasung
- Rollläden im Erdgeschoss, teilweise elektrisch
- erhöhter Einbruchschutz durch Pilzkopf-Verrieglung
- Alarmanlage
- Fliesenboden im EG / Parkett im Souterrain
- Fußbodenheizung im Erdgeschoss
- Gas-Brennwertheizung aus 2016
- Glasfaseranschluss im Haus
- Massivbauweise mit wärmegedämmter Klinkerfassade
- teils bodentiefe Fenster mit 2-fach-Isolierverglasung
- Rollläden im Erdgeschoss, teilweise elektrisch
- erhöhter Einbruchschutz durch Pilzkopf-Verrieglung
- Alarmanlage
- Fliesenboden im EG / Parkett im Souterrain
- Fußbodenheizung im Erdgeschoss
- Gas-Brennwertheizung aus 2016
- Glasfaseranschluss im Haus
Mehr anzeigen zum Thema Lage
Lage
Das Wohnhaus befindet sich in exzellenter Lage von Mülheim auf der "Heimaterde", in unmittelbarer Nähe eines Waldgebietes. Die Naherholung beginnt hier direkt vor der Haustür. Die umliegende Infrastruktur ist ausgesprochen gut. Schulen, Einkaufsmöglichkeiten und öffentlicher Nahverkehr sind in unmittelbarer Umgebung vorhanden. Das Heißener Zentrum, das Einkaufszentrum "Neue Mitte Haarzopf", sind nur wenige Fahrminuten entfernt. Das Rhein-Ruhr-Zentrum ist fußläufig erreichbar. Die Autobahnen A 40 und A 52 erreichen Sie ebenfalls in wenigen Minuten. Die Siedlung "Heimaterde" ist geprägt von charmanten, teilweise unter Denkmalschutz stehenden Häusern und wurde ab 1929 auf Initiative des Krupp-Prokuristen Max Halbach durch den Architekten Theodor Suhnel errichtet. Nicht umsonst erfreut sich dieses Wohnquartier nach dem Konzept der "Gartenstadt" aufgrund der attraktiven Gestaltung, der vielen Grünflächen und der zugleich guten Infrastruktur nach wie vor großer Beliebtheit.
Mehr anzeigen zum Thema Sonstige Angaben
Sonstige Angaben
Es handelt sich um ein provisionspflichtiges Angebot. Bei Abschluss eines Kaufvertrags ist eine Käufer-Provision in Höhe von 2,38 % inkl. MwSt. vom notariellen Kaufpreis zu zahlen, fällig nach Beurkundung.
Wir weisen darauf hin, dass wir alle Angaben zum Objekt von den Eigentümern erhalten haben und trotz sorgfältiger Prüfung für deren Richtigkeit keine Gewähr übernehmen können.
HABEN SIE SELBST EINE IMMOBILIE, DIE SIE VERÄUSSERN MÖCHTEN? Im Kundenauftrag suchen wir ständig Immobilien in verschiedenen Preis-und Lageklassen. Sprechen Sie uns gerne an und profitieren Sie von unserer fachgerechten Marktwerteinschätzung!
Wir weisen darauf hin, dass wir alle Angaben zum Objekt von den Eigentümern erhalten haben und trotz sorgfältiger Prüfung für deren Richtigkeit keine Gewähr übernehmen können.
HABEN SIE SELBST EINE IMMOBILIE, DIE SIE VERÄUSSERN MÖCHTEN? Im Kundenauftrag suchen wir ständig Immobilien in verschiedenen Preis-und Lageklassen. Sprechen Sie uns gerne an und profitieren Sie von unserer fachgerechten Marktwerteinschätzung!
Mehr anzeigen zum Thema Sonstige Angaben
Energieausweis
A+
< 30
A
30 - 50
B
50 - 75
C
75 - 100
D
100 - 130
E
130 - 160
F
160 - 200
G
200 - 250
H
> 250
- Nutzungsart
- Wohnen
- Gebäudebaujahr lt. Energieausweis
- 1991
- Endenergieverbrauch
- 75,83 kWh/(m²a)
- Energieausweis
- Verbrauchsausweis
- Energieausweis gültig bis
- 28.11.2035
- Energieeffizienzklasse
- C
- wesentlicher Energieträger
- Gas
Ihr Ansprechpartner
Herr Jörg Lindner
Lindner Immobilien
- Tel.:
- 01727442613
- E-Mail:
- jl@lindner-immobilien.net
Hatzper Straße 183
45149 Essen