Mehr anzeigen zum Thema Beschreibung
Beschreibung
Wir freuen uns, Ihnen dieses charmante Wohnhaus in ruhiger Lage von Mülheim-Styrum anbieten zu können!
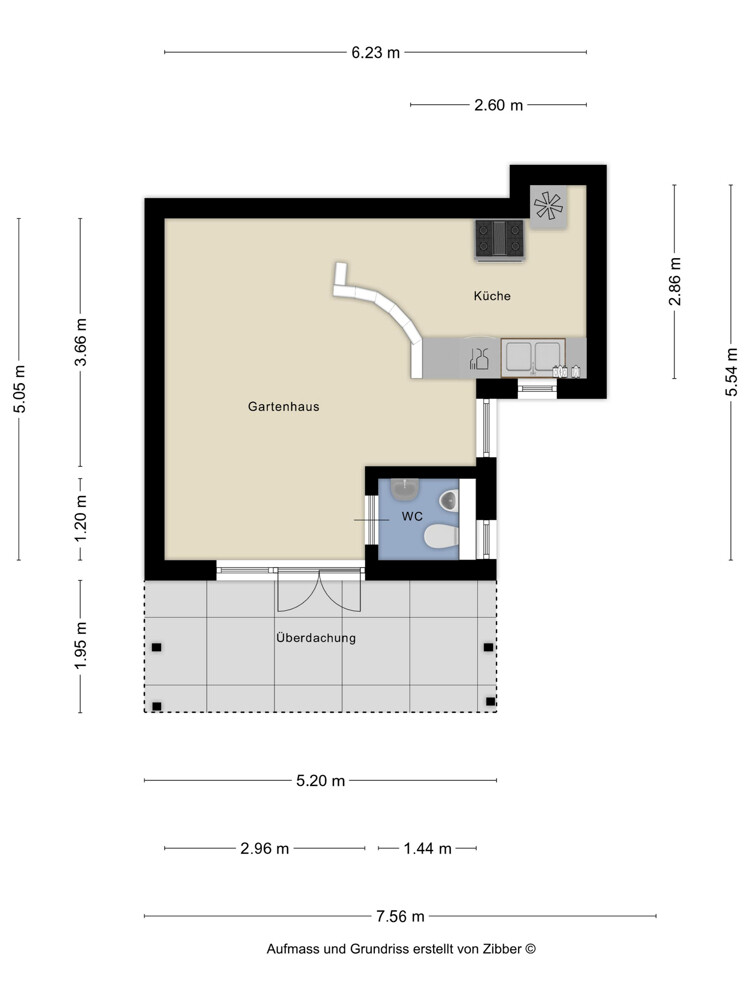
Das Objekt wurde 1907 erbaut und von den jetzigen Eigentümern liebevoll umgestaltet und saniert. Es kann sowohl als großzügiges Einfamilienhaus genutzt werden, als auch beispielsweise als Mehrgenerationenhaus. Üppige 200 m² Wohnfläche verteilen sich auf 3 Ebenen, umgeben von einem großen Garten mit Kneipp-Becken und gut ausgestattetem Gartenhaus samt Bar und WC.
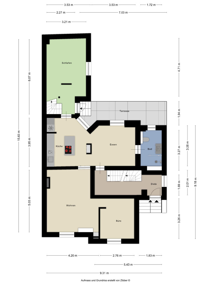
Im Erdgeschoss des Hauses betritt man durch das gemeinsame Treppenhaus die untere Wohnung, die über ca. 90 m² Wohnfläche verfügt. Offene Küche, ein geräumiger Wohnraum, modernes Tageslichtbad mit bodengleicher Dusche, halb abgetrenntes Arbeits- oder Kinderzimmer und das Schlafzimmer befinden sich auf dieser Ebene. Vom Schlafzimmer gelangt man über eine Treppe in ein weiteres Schlafzimmer samt Ankleide, das sich eine Etage höher befindet. Selbstverständlich sind andere Raumaufteilungen hier auch möglich. Die Erdgeschosswohnung verfügt zudem über einen eigenen Gartenzugang.
Im Obergeschoss des Hauses befindet sich die zweite Wohnung mit ca. 110 m² Wohnfläche, verteilt auf 2 Ebenen. Eine schöne Küche mit angrenzendem Esszimmer, modernes Bad, Schlafzimmer und ein weiterer Raum (Kinder-oder Arbeitszimmer) befinden sich auf dieser Ebene.
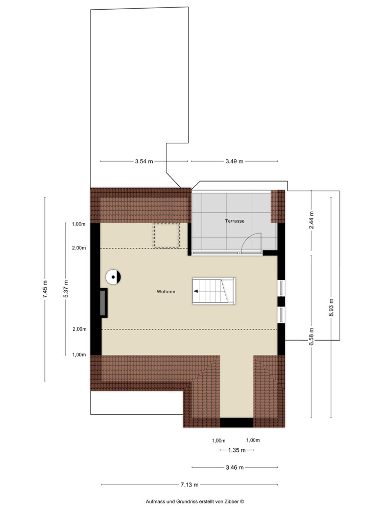
Über eine Treppe gelangt man in das ausgebaute Dachgeschoss, das als gemütlicher Wohnraum mit Kaminofen genutzt wird und über einen Zugang zum schönen Dachbalkon verfügt.
Im Keller des Hauses erwartet Sie ihr eigener "Wellness-Raum" mit Infrarot-Sauna, Dusche und Toilette. Außerdem gibt es noch einen Waschkeller, den Heizungsraum und einen geräumigen Abstellraum.
Abgerundet wird das Ganze durch die eigene Garage und den Stellplatz, die sich neben dem Haus befinden.
Nicht zu vergessen: genießen Sie den Charme eines Altbaus mit 2,75 Meter Raumhöhe!
Das Objekt wurde 1907 erbaut und von den jetzigen Eigentümern liebevoll umgestaltet und saniert. Es kann sowohl als großzügiges Einfamilienhaus genutzt werden, als auch beispielsweise als Mehrgenerationenhaus. Üppige 200 m² Wohnfläche verteilen sich auf 3 Ebenen, umgeben von einem großen Garten mit Kneipp-Becken und gut ausgestattetem Gartenhaus samt Bar und WC.
Im Erdgeschoss des Hauses betritt man durch das gemeinsame Treppenhaus die untere Wohnung, die über ca. 90 m² Wohnfläche verfügt. Offene Küche, ein geräumiger Wohnraum, modernes Tageslichtbad mit bodengleicher Dusche, halb abgetrenntes Arbeits- oder Kinderzimmer und das Schlafzimmer befinden sich auf dieser Ebene. Vom Schlafzimmer gelangt man über eine Treppe in ein weiteres Schlafzimmer samt Ankleide, das sich eine Etage höher befindet. Selbstverständlich sind andere Raumaufteilungen hier auch möglich. Die Erdgeschosswohnung verfügt zudem über einen eigenen Gartenzugang.
Im Obergeschoss des Hauses befindet sich die zweite Wohnung mit ca. 110 m² Wohnfläche, verteilt auf 2 Ebenen. Eine schöne Küche mit angrenzendem Esszimmer, modernes Bad, Schlafzimmer und ein weiterer Raum (Kinder-oder Arbeitszimmer) befinden sich auf dieser Ebene.
Über eine Treppe gelangt man in das ausgebaute Dachgeschoss, das als gemütlicher Wohnraum mit Kaminofen genutzt wird und über einen Zugang zum schönen Dachbalkon verfügt.
Im Keller des Hauses erwartet Sie ihr eigener "Wellness-Raum" mit Infrarot-Sauna, Dusche und Toilette. Außerdem gibt es noch einen Waschkeller, den Heizungsraum und einen geräumigen Abstellraum.
Abgerundet wird das Ganze durch die eigene Garage und den Stellplatz, die sich neben dem Haus befinden.
Nicht zu vergessen: genießen Sie den Charme eines Altbaus mit 2,75 Meter Raumhöhe!
Mehr anzeigen zum Thema Ausstattung Beschreibung
Ausstattung Beschreibung
Das Haus verfügt über eine gute Ausstattung und wurde in vielen Bereichen modernisiert:
- zeitgemäße Elektrik
- Photovoltaik-Anlage aus 2018 (Leasingvertrag)
- Gas-Zentralheizung aus 2024 (Leasingvertrag)
- moderne, hell geflieste Bäder
- Echtholzparkett und Fliesenböden
- elektrische Rollläden
- in einigen Räumen diffusionsoffener Lehmputz für optimales Raumklima
- Gartenhaus
- Garage
- Kneipp-Becken
- zeitgemäße Elektrik
- Photovoltaik-Anlage aus 2018 (Leasingvertrag)
- Gas-Zentralheizung aus 2024 (Leasingvertrag)
- moderne, hell geflieste Bäder
- Echtholzparkett und Fliesenböden
- elektrische Rollläden
- in einigen Räumen diffusionsoffener Lehmputz für optimales Raumklima
- Gartenhaus
- Garage
- Kneipp-Becken
Mehr anzeigen zum Thema Lage
Lage
Das Haus liegt in einer ruhigen und wenig befahrenen Sackgasse in Mülheim-Styrum. Ein kleiner "Park" samt Spielplatz liegt nur 50 Meter vom Haus entfernt. Fußläufig sind Kindergärten, Grundschulen, Stadtbücherei und die Willy-Brandt-Gesamtschule zu erreichen. In nur 5 Fahrminuten erreichen Sie das Gewerbegebiet "Heifeskamp" mit Metro, Aldi, Edeka, Lidl, Media Markt, Drogerie usw. Der Autobahnauffahrt zur A 40 ist ebenfalls nur 5 Minuten entfernt.
Mehr anzeigen zum Thema Sonstige Angaben
Sonstige Angaben
Es handelt sich um ein provisionspflichtiges Angebot. Bei Abschluss eines Kaufvertrags ist eine Käufer-Provision in Höhe von 3,57% inkl. MwSt. vom notariellen Kaufpreis zu zahlen, fällig nach Beurkundung.
Wir weisen darauf hin, dass wir alle Angaben zum Objekt von den Eigentümern erhalten haben und trotz sorgfältiger Prüfung für deren Richtigkeit keine Gewähr übernehmen können.
HABEN SIE SELBST EINE IMMOBILIE, DIE SIE VERÄUSSERN MÖCHTEN? Im Kundenauftrag suchen wir ständig Immobilien in verschiedenen Preis-und Lageklassen. Sprechen Sie uns gerne an und profitieren Sie von unserer fachgerechten Marktwerteinschätzung!
Wir weisen darauf hin, dass wir alle Angaben zum Objekt von den Eigentümern erhalten haben und trotz sorgfältiger Prüfung für deren Richtigkeit keine Gewähr übernehmen können.
HABEN SIE SELBST EINE IMMOBILIE, DIE SIE VERÄUSSERN MÖCHTEN? Im Kundenauftrag suchen wir ständig Immobilien in verschiedenen Preis-und Lageklassen. Sprechen Sie uns gerne an und profitieren Sie von unserer fachgerechten Marktwerteinschätzung!
Mehr anzeigen zum Thema Sonstige Angaben
Energieausweis
- Nutzungsart
- Wohnen
- Gebäudebaujahr lt. Energieausweis
- 1907
- Endenergiebedarf
- 189 kWh/(m²a)
- Energieausweis
- Bedarfsausweis
- Energieausweis gültig bis
- 02.09.2035
- wesentlicher Energieträger
- Gas
Ihr Ansprechpartner
Herr Jörg Lindner
Lindner Immobilien
- Tel.:
- 01727442613
- E-Mail:
- jl@lindner-immobilien.net
Hatzper Straße 183
45149 Essen